Veřejná zakázka: 246/2025 Oprava volného bytu č. 51, V. Košaře 3/123, Ostrava-Dubina

Informace o veřejné zakázce

fáze zadávacího řízení Zadáno
Zakázka byla zadána.
DBID: 6459
Systémové číslo: P26V00000002
Evidenční číslo zadavatele: 246/2025
Spisová značka: S-JIH/000191/26
Dle zákona: č. 134/2016 Sb.
Dynamický nákupní systém:
VZ 78.22 DNS „Provádění oprav v bytech ve vlastnictví SMO, svěřených městskému obvodu Ostrava-Jih“
Datum zahájení: 05.01.2026
Nabídku podat do: 16.01.2026 10:00

Název, druh veřejné zakázky a popis předmětu

  • Název: 246/2025 Oprava volného bytu č. 51, V. Košaře 3/123, Ostrava-Dubina
  • Druh veřejné zakázky: Stavební práce

Stručný popis předmětu:
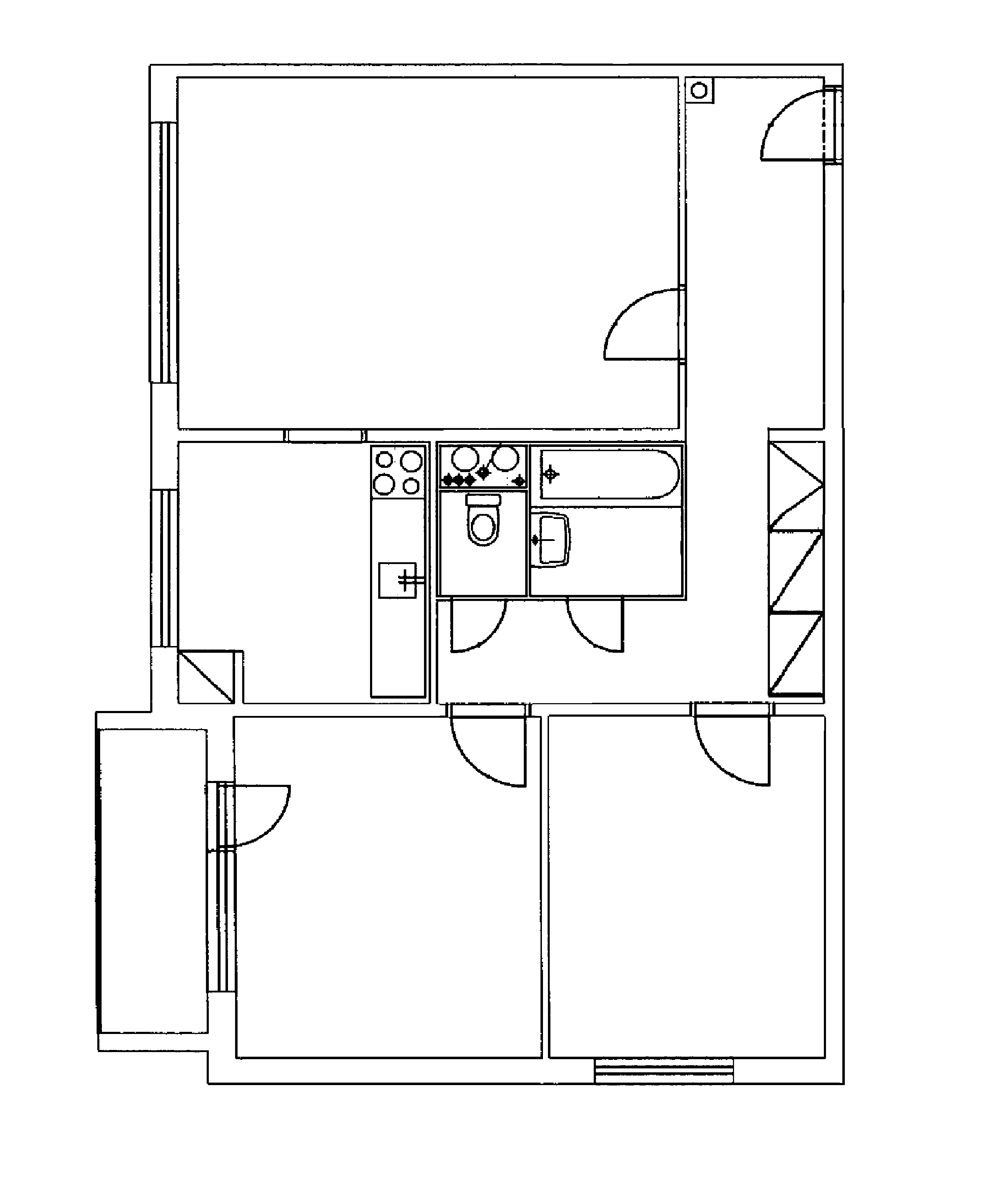
Předmětem díla je oprava volného bytu č. 51, V. Košaře 3/123, Ostrava-Dubina, včetně GO elektroinstalace, revize plynoinstalace, výměna zařizovacích předmětů podlahových krytin, obkladů a dlažby, zhotovení nových omítek, provedení nátěrů a maleb, jedná se o demontáž a montáž zařízení včetně dodávky dle soupisu oprav volného bytu uvedených v příloze č. 1 této výzvy.

Postup zadání, předpokládaná hodnota

  • Postup: zakázka v DNS zahájená výzvou
  • Režim veřejné zakázky: podlimitní
  • Předpokládaná hodnota: neuvedena

Zadavatel

  • Úřední název: Statutární město Ostrava, městský obvod Ostrava-Jih
  • IČO: 00845451
  • Poštovní adresa:
    Horní 791/3
    700 30 Ostrava-Hrabůvka
  • Id profilu zadavatele ve VVZ: Z2017-012360

Adresa kontaktního místa

Nabídky, resp. žádosti o účast podávat na:
prostřednictvím elektronického nástroje E-ZAK (https://zakazky.ovajih.cz)

Kontakt

Položky předmětu (CPV)

Zadávací dokumentace

Vysvětlení, doplnění, změny zadávací dokumentace

Hodnocení nabídek

Veřejné dokumenty

Formuláře

URL odkazy

Plnění smlouvy na základě veřejné zakázky